【外観】物件の外観です
- 価格
- 1,880万円
- 間取り
- 2LDK
- 向き
- 南西
- 専有面積
- 48.18㎡
- 築年月
- 1985年4月(築40年)
- ※事前に必ずお問い合わせください
- ■現地内覧をご希望でしたらお気軽にお問合せ下さい■
●日時
随時ご見学が可能です
●ご案内方法
ご自宅へお迎え・最寄り駅等でお待合せ・現地待合せ
ご希望物件のご内覧はもちろんご希望であれば類似物件
のご内覧も可能です!
その他、購入希望物件の住宅ローンの申込先金融機関や
資金計画のアドバイス、リフォーム相談、司法書士、
税理士、引越業者のご紹介等お客様をサポートさせて
いただきます。
お気軽にリクラス不動産販売までお問い合わせ下さい。
-
バストイレ別
-
室内洗濯機置場
-
TVモニタ付きインターホン
-
独立洗面台
-
浴室乾燥機
-
エレベーター

キッチン
リビング
風呂
洋室
バルコニー- 管理費
- 10,030円
- 修繕積立金
- 12,940円
- 修繕積立基金
- -
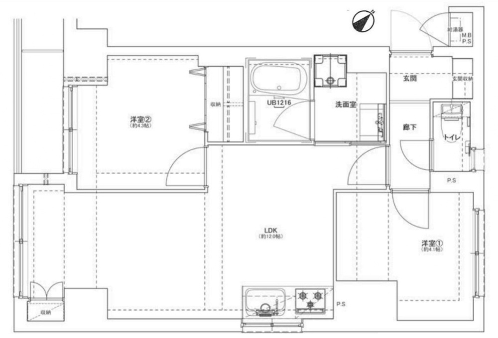
- 間取り / 詳細
- 2LDK
LDK 12.0帖 1室/洋室 4.3帖 1室/洋室 4.1帖 1室 - 向き
- 南西
- 専有面積
- 48.18㎡
- バルコニー面積
- 2.55㎡
- その他面積
- -
-
- - 所在階 / 階建て
- 5階 / 11階建
- 建物構造
- 鉄骨鉄筋コンクリート
- 築年月
- 1985年4月(築40年)
- 種別
- 中古マンション
- 駐車場 / 月額
- 無 / -
- 土地権利
- 所有権
- 土地
(敷金 / 保証金) - - / -
- 国土法届出要否
- 不要
- 接道状況
- -
- 用途地域
- 商業
- 地勢
- -
- 都市計画
- 市街化区域
- 現況
- 空家
- 引渡し
- 即時
- 取引態様
- 仲介
- 棟総戸数
- 118戸
- 管理形態
- 管理会社に全部委託
- 管理会社 /
管理組合有無 - 日本ビルサービス / 有
- リフォーム
-
-
2026年1月
キッチン 浴室 トイレ 壁 床 全室 洗面化粧台新調・ハウスクリーニング - 取引条件の
有効期限 - 2026年03月23日
- 設備条件
-
- 陽当り良好 / リフォーム済 / 眺望良好 / 現地見学会 / 室内洗濯機置場 / フローリング / バルコニー / 都市ガス / 公営水道 / エレベーター / 電気有 / 駐輪場 / ガスコンロ / コンロ2口以上 / システムキッチン / コンロ3口 / バス・トイレ別 / 浴室乾燥機 / 温水洗浄便座 / 独立洗面台 / TVモニタ付インターホン / 住戸内覧可能
- 設備(その他)
-
-
-
- 物件番号
- 101592405
- 管理コード
- -
- 建築確認番号
- -
- 情報更新日
- 2026年03月14日
- 次回更新予定日
- 2026年03月23日
- 取扱会社
-
- リクラス不動産販売株式会社
- 兵庫県神戸市中央区元町通5丁目7-18
- TEL:078-381-8586
- 兵庫県知事 (2) 第12132号
- 公益社団法人 全日本不動産協会
公益社団法人 不動産保証協会
公益社団法人 近畿地区不動産公正取引協議会
全日本不動産政治連盟
- 備考
- 神戸市西神・山手線湊川公園駅周辺への引っ越しをお考えなら「朝日プラザ湊川」。湊川公園まで350mです。トーホーストア 湊川公園店まで333mです。リクラス不動産販売はお客様がより快適に暮らせるよう、しっかりと住まい探しのサポートを致します。ご連絡は078-381-8586にお待ちしております。
-
コンビニエンスストア
セブン-イレブン神戸下沢通1丁目店
81m(2分)
-
寿司
寿司鮮魚 御領丸
122m(2分)
-
中華料理
中華料理吟
131m(2分)
-
その他
カレーハウスCoCo壱番屋 兵庫区湊川駅前店
133m(2分)
-
駅
湊川公園
161m(3分)
-
焼肉
七輪焼ホルモンえん臓
167m(3分)
-
ラーメン
来々軒
249m(4分)
-
喫茶店・カフェ
松岡珈琲店
253m(4分)
-
そば・うどん
松屋うどん店
268m(4分)
-
ファーストフード
マクドナルド 神戸湊川店
283m(4分)
-
ファミリーレストラン
木曽路湊川店
288m(4分)
-
スーパー
業務スーパー 湊川店
317m(4分)
-
スーパー
トーホーストア 湊川公園店
333m(5分)
-
銀行
みなと銀行 兵庫支店
337m(5分)
-
公園
湊川公園
350m(5分)
-
警察
兵庫警察署
404m(6分)
-
総合病院
井上病院
423m(6分)
-
ディスカウントショップ
オバタ東山店
638m(8分)
-
ファミリーレストラン
ロイヤルホスト 湊川店
725m(10分)
-
ホームセンター
DCM DAIKI(DCMダイキ) 大開店
1118m(14分)
- 月々の支払額
- 円
- 購入希望物件価格
-
万円
- 頭金
-
万円
- 金利
-
%
- 返済額(ボーナス1回分)
-
万円
- 返済期間
-
年
現地見学会
物件の特徴
セールスポイント
こだわりポイント満載の朝日プラザ湊川。家から井上病院まで423mです。歩いて333mの場所に、トーホーストア 湊川公園店があります。お引越しを検討しているのであれば、神戸市兵庫区エリアの神戸市西神・山手線湊川公園近くを当社がご案内します。info@riclass.jpから来店のご予約ができますので、気軽にご連絡下さい。
ポイント
3沿線以上利用可 LDK12帖以上 浴室乾燥機 南面バルコニー フローリング張替
担当者のコメント
パノラマ画像
基本情報
設備条件
その他
周辺施設
支払いシミュレーション
※ボーナスは自動で年2回分で計算されます。
近隣の物件
よく見られている物件
朝日プラザ湊川
1,880万円
10,030円
2LDK(48.18㎡)


受付 スタッフ